Ensy balansert ventilasjonsaggregater
Ensy ventilasjonsaggregater for balansert ventilasjon er utviklet for energieffektiv drift, godt inneklima og høy komfort i bolig og mindre næringsbygg. Med lang erfaring innen ventilasjon tilbyr Ensy moderne løsninger tilpasset nordiske forhold.
ENSY har røtter helt tilbake til 1903 og har gjennom flere tiår levert ventilasjons- og varmeprodukter til det skandinaviske og europeiske markedet. Med over 225.000 produserte ventilasjonsaggregater er Ensy en etablert aktør innen boligventilasjon.
Energieffektiv ventilasjon for bolig og næring
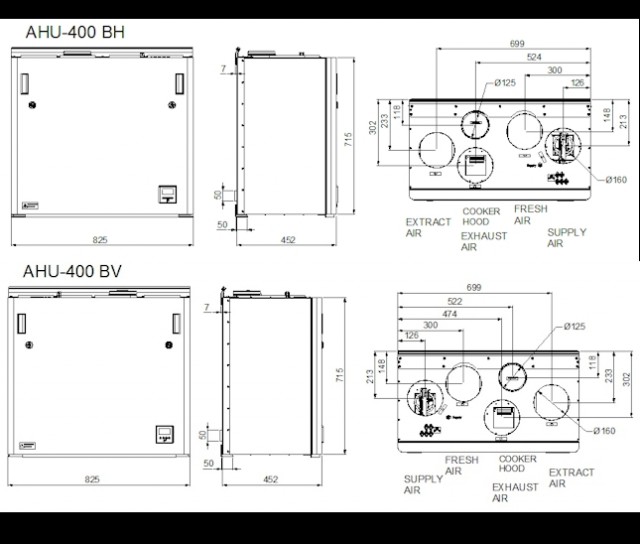
Ensy AHU-serien består av modeller som AHU 200, 300, 350, 400 og 700, med kapasitet fra 200 til 700 m³/h. Disse ventilasjonsaggregatene passer godt til leiligheter, småhus, eneboliger samt mindre næringsbygg og barnehager.
Aggregatene er utviklet med fokus på høy virkningsgrad, lavt energiforbruk og stillegående drift. De oppfyller kravene i TEK17 og tilfredsstiller også passivhusstandard med temperaturvirkningsgrad over 80% og lav spesifikk vifteeffekt (SFP).
Moderne teknologi og varmegjenvinning
Ensy ventilasjonsaggregater benytter roterende varmeveksler som effektivt overfører varme fra avtrekksluften til tilluften uten at luftstrømmene blandes. Dette gir energieffektiv ventilasjon og et stabilt inneklima gjennom hele året.
Alle aggregater er utstyrt med innebygget ettervarmebatteri og hygrostat for fuktighetsstyring, noe som sikrer optimal komfort i boligen.
Behovsstyrt ventilasjon og fleksible løsninger
Med behovsstyrt ventilasjon tilpasses luftmengden etter faktisk behov, noe som gir lavere energiforbruk og bedre inneklima. Systemet kan utvides med tilleggsutstyr som CO₂-sensor, kjøkkenhette, brytere for hjemme/borte-funksjon og styring fra våtrom.
Alle funksjoner er integrert i styringssystemet, noe som gjør installasjon og bruk enkelt og oversiktlig.
Ensy – kvalitet og erfaring
Produktutviklingen skjer ved Ens y sitt hovedkontor på Jaren i Norge, med fokus på å ligge i front teknologisk og levere løsninger som er tilpasset markedets behov.
Velg Ensy balansert ventilasjon for en energieffektiv løsning med høy ytelse, lavt lydnivå og lang levetid.